Floor Plan
There are four types of condominium units; Types A, B, C and D, from Level 1 to Level 9.

The layouts of a typical floor for the condominium units are as shown below.

 
 
All units have dual entrances, leading into one fully equipped studio and one 3 bedroom condominium. The unit can be used as a four bedroom unit as well, being linked through the yard access.

All bedrooms are equipped with a fully tiled bathroom with glass shower screen, separating the wet from the dry areas.

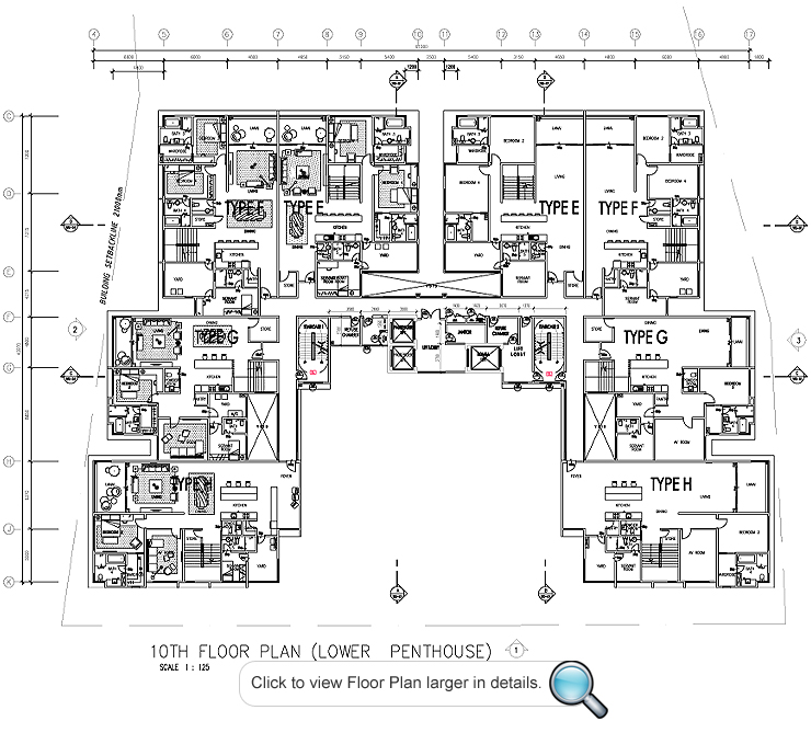
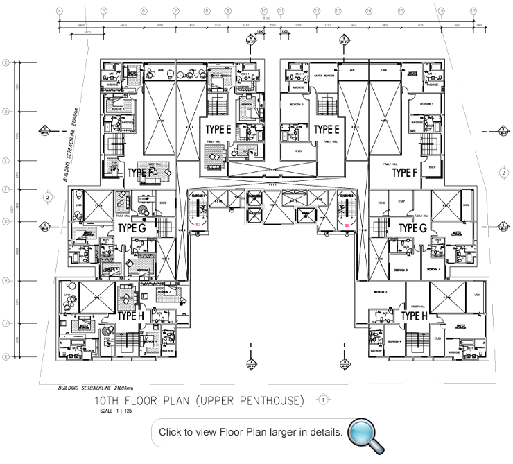
The four types of penthouses, Types E, F, G and H are duplex units on the Lower 10 Floor and the Upper 10 floor. The 5 bedroom penthouses have two sea-facing balconies each.

The layouts of the lower and upper penthouses are as shown below.

 
 
 
 
 
Storey Plan